埼玉県 注文住宅/リフォーム工事/エクステリア/不動産
トータルな家づくりをサポート致します
営業エリア(加須市・羽生市・幸手市・久喜市・行田市・鴻巣市・上尾市)

・エコモア/概要|・エコモア内観詳細|・エコモアプラン集|・プロトタイプ|・ひだまり|・見積りシュミレータ|・付帯仕様費用を見る

![]() |
![]() |
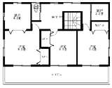
西入り玄関 1F 48.02㎡ (14.50坪) 2F 46.37㎡ (14.00坪) 合計 94.39㎡ (28.50坪) |
![]() |
![]() |
南入り玄関 1F 49.68㎡ (15.00坪) 2F 52.99㎡ (16.00坪) 合計 102.67㎡ (31.00坪) |
![]() |
![]() |
南入り玄関 1F 57.96㎡ (17.50坪) 2F 49.68㎡ (15.00坪) 合計 107.64㎡ (32.50坪) |
![]() |
![]() |
![]() |
南入り玄関 1F 57.96㎡ (17.50坪) 2F 49.68㎡ (15.00坪) 屋根裏 8.20㎡ (2.50坪) 合計 115.92㎡ (35.00坪) |
![]() |
![]() |
南入り玄関 1F 76.59㎡ (23.12坪) 2F 54.65㎡ (16.50坪) 合計 131.24㎡ (39.42坪) |
![]() |
![]() |
南入り玄関 1F 108.27㎡ (32.68坪) 2F 66.66㎡ (20.12坪) 合計 174.93㎡ (52.80坪) |
埼玉の新築/注文住宅・自由設計の専門会社プロト・デザインハウスは安心してお客様の住まい設計のご相談から施工、アフターケアまでトータルにサポートしています。